Jacqueline Kennedy Onassis High School

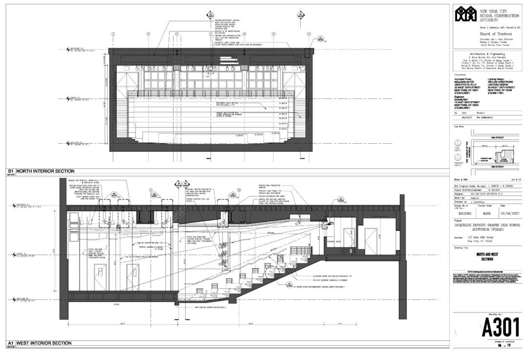
The Jacqueline Kennedy Onassis High School, previously the High School for the Performing Arts in Manhattan, is located in New York City's Theater District. Originally constructed in 1893, with additions following in 1905, the existing building is five stories and approximately 52,718 square feet. The building houses a magnet program in international careers as well as supporting programs for dance and drama.

The School Construction Authority administered several renovation projects at the school in recent years including mechanical, electrical, and plumbing improvements in 1990 and other capital improvements in 1993. The auditorium was in good condition given its not too distant upgrade in 1993. However, most of the audio and visual systems critical to the auditorium space were not working properly. Nelligan White was asked to provide recommendations so that the auditorium could be fully utilized. These recommendations included upgrades to broken or outdated audiovisual equipment, stage lighting, and lighting controls as well as the augmentation of the air conditioning system.

Our comprehensive renovation of the space included a state-of-the-art dimming system with central and satellite control. Additionally, Nelligan White’s design also incorporated five motorized hoists to raise and lower theatrical lights over the stage and auditorium. Additionally, upgrades incorporated stage curtains, proscenium valance, studio-quality sound system, large-format projector, and motorized projection screen.

This project was substantially completed in September 2008.

Architectural Staff
Nick Angela
Carrie Benmekk
Heejung Im
Nicole Kraft
Jake LaChapelle
Cameron Lory
Bruce G. Nelligan
Project Team

Client
New York City School Construction Authority (NYCSCA)

Structural Engineer
Hage Engineering PC.

Mechanical, Electrical & Plumbing Engineer
Dewberry

Lighting Design
William Armstrong Lighting Design